back to listings

Property Details

Address:
3818 Lemon Drop Lane
The Bluffs on the Cape Fear
Leland NC 28451

Specs:
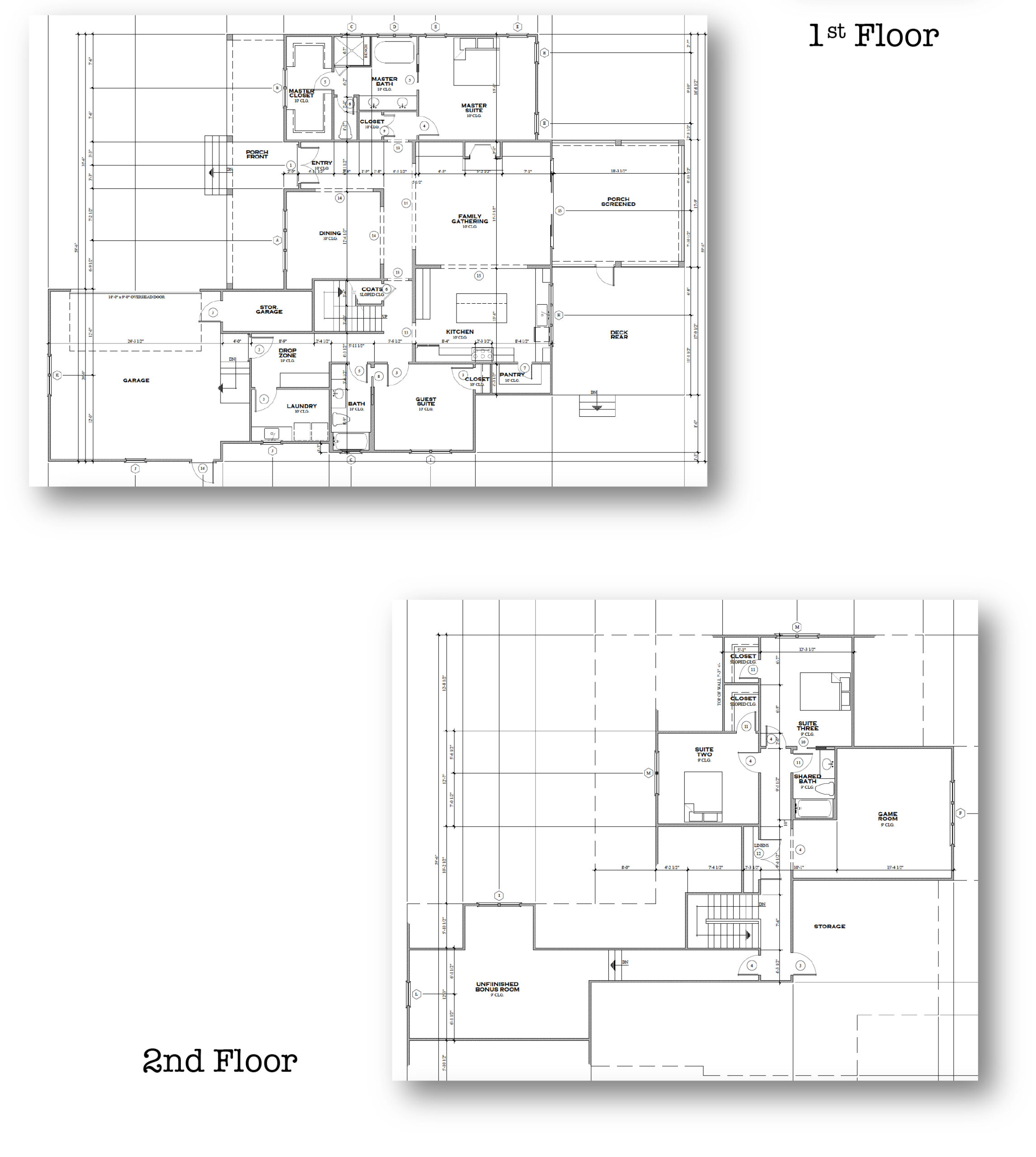
Sq ft: 3,041
Beds: 4
Bath: 3

Book an Appointment

Description:
This home at the Bluffs on the Cape Fear has 3,041 square feet, 4 Bedrooms and 3 bathrooms.

Get your FREE info packet today!

click here